68
$471,500 Sale
Listed 9 hours ago
3935 Eagle Bay Rd. Road Unit# 1
· 2
· 2.5
· 1
· 1280
Key Facts
Key facts for 3935 Eagle Bay Rd. Road Unit# 1
Property Type
Townhome, Row / Townhouse
Parking
Garage: No, 1 parking
MLS #
10364349
Size
1280 sqft
Basement
-
Listed on
-
Lot size
-
Tax
-
Days on Market
-
Year Built
1995
Maintenance Fee
$777/mo
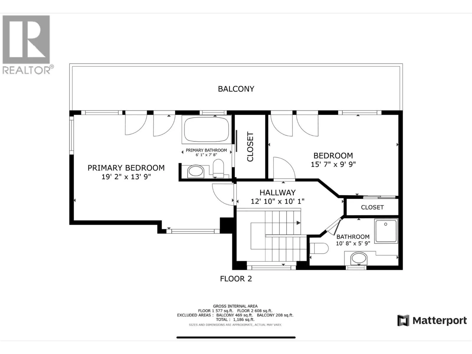
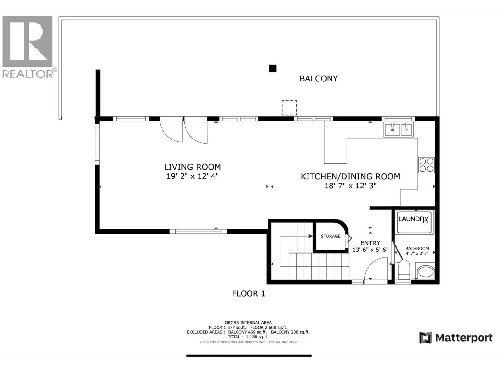
Description
Eagle Bay Landing has been pumping out Good Times since 1995! Executive waterfront townhouse boasting an east-west floor plan, fresh and cooling flow-through breezes and all bedrooms and living areas offering panoramic lake views. With two floors and double the balcony space (72 ft. combined), outdo...or living space adds over 700 sq. feet. This home is encompassed with super natural beauty and direct access to family recreation on Shuswap lake. This rare offering gets you the best unit in the building by far. Strata fees include three hundred feet of waterfront, three large docks, sewer (community Septic) and water, a delightful community garden area, fire pit and boat trailer parking on a separate lot. The Buoy is yours to own privately and maintain. Recently (3.5 yrs) upgraded sewer system has been bought ‘n paid for. Year round occupancy permitted too. Short Term Rentals subject to Municipal Permit. Closing date subject to Probate. Click on the Virtual Tour. All measurements are approx and taken from Matterport camera and should be verified. (38546329) (id:10452)
Similar Properties (No results)
Room Types
2pc Bathroom
-
Dimensions 5'6'' x 5'
27.5 sqft
3pc Bathroom
-
Dimensions 5'7'' x 9'
50.25 sqft
3pc Ensuite bath
-
Dimensions 6' x 7'8''
46 sqft
Listing courtesy of: Stonehaus Realty (Kelowna)
This REALTOR.ca listing content is owned and licensed by REALTOR® members of The Canadian Real Estate Association.